台北市松山區店面法拍

台北市松山區店面法拍|松山區店面一樓民生社區法拍屋生活機能佳

近捷運小巨蛋站,交通四通八達,民生社區優質生活圈!
列印
  • 售1044萬2000元
    售836萬4000元
    1. 案號:四拍【113德114128二】1214
    2. 類型:法拍店面_一樓_東社市場店面
    3. 總登記坪數:
    4. 每坪單價:
    5. 地址:台北市松山區民生東路五段36巷6弄13號1樓店面,法拍屋代標 專線0913-303663 +LINE
    1. (煩請告知聯絡人,您是在House-Info房屋網看到廣告,感恩幫忙)
    2. 0913-303-663
    1. 市話:
    2. 公司名稱:
    3. 公司地址:
    近捷運小巨蛋站,交通四通八達,民生社區優質生活圈!-QR CODE 我要留言 加LINE好友
物件介紹
詳細資料
銷售狀態
待標中
屋齡
47年
所在樓層
1/共4樓
電梯
未知
是否凶宅
不是
法拍屋
拍次
四拍
開標日期
115/01/15(四)
瀏覽人次
102人次
周邊環境
生活機能
中崙高中、健康國小,公園/休閒: 寧安公園、民生公園,商圈: 民生社區商圈,市場: 東社市場,便利商店門市名稱: 7-11、全家、OK、萊爾富、美廉社、全聯,自助洗衣店: 洗E店投幣式自助洗衣坊 (民生東路五段176號)、洗衣対策 (民生東路五段69巷9號)
鄰近交通
捷運台北小巨蛋站機場:台北松山機場(車程約10-15分鐘),民生社區活動中心站(多路公車行經),東社市場站(多路公車行經),省道等公路名稱: 民生東路五段,交通對外聯絡道路:民生東路、光復北路、南京東路,通往方向:東區、內湖、大直、信義區,公車站:民生社區活動中心站、東社市場站(詳細公車線路編號請參考現場站牌資訊),YouBike:民生社區活動中心YouBike站點
坪數說明
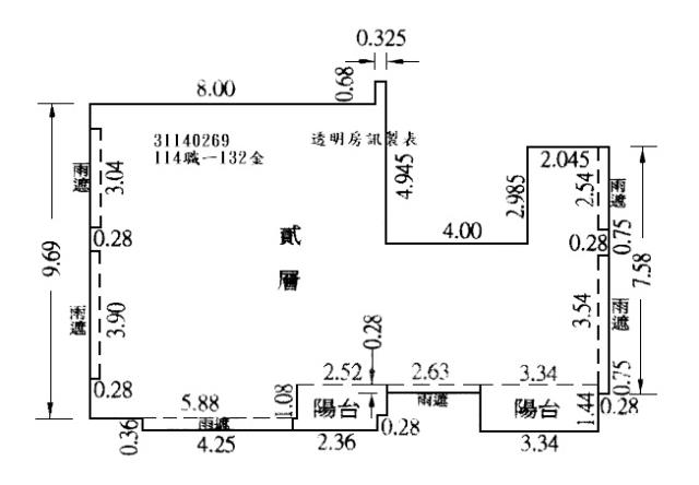
建物登記總坪數
14.43
主建物
8.74
附屬建物
1.15
公共設施
4.54
增建
6.84
土地登記總坪數
5.40
特色描述
一零四法拍網(創立40週年)業界最大/專業團隊/全省服務/值得託付~

專業代標『吳先生』全程為您服務代標專線 0913303663點入+line

💥💥💥刊登內容以公告機關為準請投標人注意🔥🔥🔥

法院筆錄:●點交情形→點交●

1‧本件拍賣標的10574、19536建號於本院現場查封時,債務人薛O生在場稱由債務人薛O貞出租予第三人陳O亨使用,租期自113年5月1日起至114年4月30日止,每月租金24,000元。又本件債權人於114年7月28日陳報租約屆期後,第三人以口頭續租迄今。因原租約已屆期而消滅,第三人續租違反查封之效力,本件拍定後點交。

2‧19536建號建物為夾層增建,建物因未辦理建築物所有權第一次登記,拍定後拍定人無法逕持不動產權利移轉證書辦理所有權移轉登記,且經臺北市建築管理工程處114年2月27日北市都建查字第1146010171號函列為垂直增建違章建築,依臺北市違章建築處理規則第33條規定,將現況予以拍照存證處理,拍定人應自行負擔被拆除危險,不得異議,請應買人注意。

3‧本件係變價分割遺產案件,依民法第830條第2項準用第824條第7項規定,除買受人為公同共有人外,公同共有人有優先承買權,有二人以上行使優先承買權者,以抽籤定之。

4‧本件拍賣標的另經函詢相關主管機關後,查復無發生非自然死亡、火災受損、海砂屋、地震受創之紀錄,惟建物實際狀況仍須經專業人員辦理相關鑑定及偵測始能確認是否為海砂屋、有無地震受創,應由拍定人自行查明,請應買人注意。

《分割遺產(變價)》

[他項權利: 拍後塗銷]

特別提醒謄本資料:另有公設建號10887坪數。

[謄本]:總坪數14.43坪[主建坪8.74坪,附屬坪1.15坪,公設坪4.54坪(建號:10887)],另增建坪6.84坪[RC造/商業用]


拍賣機關公告

📣司法院法拍屋公告 📣國有財產署標售不動產資訊📣台灣金服含未辦繼承法拍物件 

📣法拍屋拍定價公告📣法務部行政執行署法拍物件📣產權清楚☆強制執行法【7781 


🔎法拍一點不燒腦~~眉角全都在這邊~~懶人包裡報您知~~

🤑 🤑買法拍指定一零四🤝手把手當您好幫手 📣【可免費試聽喔~

💎法拍入門課程💎最強師資陣容💎豐富閱歷傳授💎專業團隊開講

法拍屋代標流程~~

1.銀行代墊尾款:(最高可貸八成)   2.現場合理價格評估

3.得標協助辦理過戶                      4.點交全程不用陪同

5.和諧交付等您入住                      6.未得標不收取費用

法拍代標找專業~投標必中下決心~過了這村沒那店~別讓資金睡著了

誠摯讓您感受最優質的代標全程服務

自備2成輕鬆成家~特約銀行核撥快速~只有買方安心選購~彈性出價理財首選~

免費諮詢可+line望您來電問透透消除疑慮再委託收費契約最透明

❦❦❦❦❦❦❦❦❦❦❦❦❦❦❦❦❦❦❦❦❦❦❦❦❦❦❦❦❦❦❦❦❦❦❦❦

雙北助理專線
02-22650614   桃園助理專線03-3293994 全省0913303663  


🏘️ 經紀業:財欣不動產管理顧問有限公司 統一編號:22857204

 經紀人:(97)年北市經證字001562號 

💼 營業員:(98)登字第133601號

📣📣104法拍網/透明房訊/法拍屋,土地全省最新拍賣資訊

📣台北法拍屋快搜  📣新北法拍屋快搜   📣桃園法拍屋快搜   📣台中法拍屋快搜

北區熱門法拍屋  北區法拍屋精選    樂屋網

❦❦❦❦❦❦❦❦❦❦❦❦❦❦❦❦❦❦❦❦❦❦❦❦❦❦❦❦❦❦❦❦❦❦❦❦

 生活e點通~

📣財政部新青安成家  📣全國地政電子謄本系統 📣地籍圖便民服務 📣房地合一專區     

📣台北捷運路線圖  📣新北捷運路線圖  📣桃園捷運路線圖  📣台中捷運路線圖 
松山店面法拍-0
松山店面法拍-0
松山店面法拍-1
松山店面法拍-1
松山店面法拍-2
松山店面法拍-2
松山店面法拍-3
松山店面法拍-3
松山店面法拍-4
松山店面法拍-4
松山店面法拍-5
松山店面法拍-5
物件留言
請注意,如果您詢問的內容與物件不相符合或是廣告,經過審核,系統將會直接刪除您的發問內容
等待圖示
相似物件
免責聲明:House-Info房屋網平台系統為租用式開放房屋買賣網站建置平台,僅提供會員查詢-台北市,松山區,店面-等房屋資訊參考,並不涉入任何諮詢、交易。 物件(服務)聯絡人公佈的資訊、文字、照片、圖形、產權、廣告內容、或其他資料若有不實或違法情事,或與客戶聯絡交易過程中若衍生民事或刑事等法律問題,皆與House-Info房屋網站無關,所有商標、文章、名稱等版權,皆歸屬原著作者所有!