新北透天法拍
首頁
法拍屋物件查詢
法拍屋相關資訊
法拍屋社區大樓
法拍屋委託代標
透明房訊104法拍網
104法拍網
不動產新聞
google查詢
首頁
›
法拍屋物件查詢
›
新北法拍透天
›
汐止法拍透天
›
新北透天法拍
新北透天法拍|汐止東湖國小生活圈法拍屋忠三街瓏山林社區獨棟別墅附車位
售
汐止東湖菜市場商圈法拍屋,瓏山林社區獨棟別墅附車位
列印
售4130萬
售3305萬
案號:
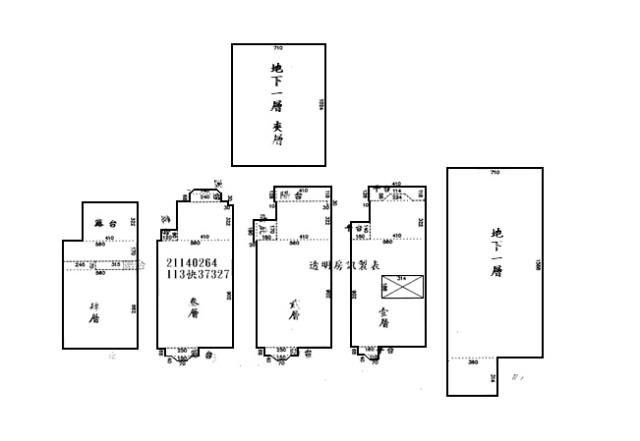
二拍【113快37327】
類型:
法拍透天_別墅_金龍湖風景區
總登記坪數:
165.13坪
每坪單價:
20.01萬/坪
地址:
新北市汐止區忠三街39巷53號4層樓獨棟透天附車位,法拍屋代標 專線0913-303663 +LINE
吳先生
(煩請告知聯絡人,您是在House-Info房屋網看到廣告,感恩幫忙)
0913-303-663
市話:
專業代標 吳先生 0913303663 02-22650614 03-3293994
公司名稱:
財欣不動產管理顧問有限公司/專業代標/營業員(97)經證字號001562
公司地址:
新北市土城區金城路二段396號11樓/桃園市莊敬路一段346號4樓/統編:22857204
我要留言
加LINE好友
物件介紹
詳細資料
銷售狀態
:
待標中
格局
:
4房,3廳,3衛,4陽台,1廚房
社區/大樓
:
瓏山林
(聯邦建設)
屋齡
:
35年
車位
:
48號
所在樓層
:
4層樓獨棟透天別墅
管理費
:
每月2000元(含垃圾處理費)
管委會
:
有
中庭
:
有
電梯
:
未知
是否凶宅
:
不是
法拍屋
:
是
拍次
:
二拍
開標日期
:
115/02/05(四)
瀏覽人次
:
43人次
周邊環境
生活機能
:
內溝溪生態園區,東湖菜市場大湖公園,金龍湖.,老鷹尖,柚子山,翠湖,湖光市場,康寧醫院,東湖生活圈,東湖國小,東湖國中,內湖科技園區,南港科技園區,東湖日湖百貨,哈拉影城商圈,內湖三軍總醫院,總戶數約1442戶,管理費每月2000元
鄰近交通
:
捷運東湖站,國道1號汐止交流道,國道3號汐止交流道,公車,社區大門旁就是公車總站,可搭乘281,藍12,小S,S1,汐止社區巴士7社后線,汐止社區巴士8八連線等號公車
坪數說明
建物登記總坪數
:
165.13
主建物
:
127.51
附屬建物
:
14.65
公共設施
:
0.51
停車位
:
22.46
土地登記總坪數
:
55.14
特色描述
♛
一零四法拍網(創立40週年)業界最大/專業團隊/全省服務/值得託付~
♠
︎
專業代標『吳先生』全程為您服務
♠
︎
代標專線
☎
0913303663
點入
+
line
💥💥💥
刊●點交情形→詳如備註●
1‧3344建號拍定後點交,3354建號係拍賣不動產應有部分,拍定後不點交。
2‧民國113年10月9日現場調查時,經開鎖入內檢視為空屋,無人使用,車位編號為48號,目前無人使用。惟現在實際情形如何,仍請應買人自行查明注意。
3‧拍賣標的經臺灣臺中地方法院113年度聲扣字第3號刑事裁定准予扣押,臺中市政府警察局刑事警察大隊以113年1月15日中市警刑七字第1130002192D號函辦理禁止處分之登記在案。本件拍定後經拍定人依法繳足價金,本院核發權利移轉證書後,將依最高法院107年度台抗字第445號裁定意旨,發函通知禁止處分機關函請地政機關塗銷禁止處分登記,俾利拍定後辦理移轉登記,以達保全沒收、追徵同時兼顧交易安全維護之目的,請投標人特別注意。
4‧投標人應自行查明債務人有無積欠管理費,並注意拍定後民法第826條之1第3項規定之適用問題。
《清償票款》
[他項權利: 拍後塗銷]
特別提醒謄本資料:3344建號另有附屬建物48.44㎡,與公告不符,請應買人自行確認注意!
[謄本]:總坪數165.13坪[主建坪127.51坪,附屬坪14.65坪,停車坪22.46坪(建號:3354),公設坪0.51坪(建號:3356)][RC造/住家用]登內容以公告機關為準請投標人注意
🔥🔥🔥
法院筆錄:
⚖
️
拍賣機關公告
📣
司法院法拍屋公告
📣
國有財產署標售不動產資訊
📣
台灣金服含未辦繼承法拍物件
📣
法拍屋拍定價公告
📣
法務部行政執行署法拍物件
📣
產權清楚☆
強制執行法
【77
條
”
81
條
】
🔎
法拍一點不燒腦~~
眉角全都在這邊~~
懶人包裡報您知~~
📣📣
104
法拍網/
透明房訊/
法拍屋,
土地全省最新拍賣資訊
📣
台北法拍屋快搜
📣
新北法拍屋快搜
📣
桃園法拍屋快搜
📣
台中法拍屋快搜
♠
北區熱門法拍屋
♠
北區法拍屋精選
♠
樂屋網
⏳
法拍屋代標流程
~~
1.
銀行代墊尾款
:(
最高可貸八成
)
2.
現場合理價格評估
3.
得標協助辦理過戶
4.
點交全程不用陪同
5.
和諧交付等您入住
6.
未得標不收取費用
☛
法拍代標找專業
~
☛
投標必中下決心
~
☛
過了這村沒那店
~
☛
別讓資金睡著了
❤
誠摯讓您感受最優質的代標全程服務
自備2成輕鬆成家~特約銀行核撥快速~只有買方安心選購~彈性出價理財首選~
❦
免費諮詢可
+line
❦
望您來電問透透
❦
消除疑慮再委託
❦
收費契約最透明
❦❦❦❦❦❦❦❦❦❦❦❦❦❦❦❦❦❦❦❦❦❦❦❦❦❦❦❦❦
雙北助理專線
☎
02-22650614
桃園助理專線
☎
03-3293994
全省
☎
0913303663
🏘
️
經紀業:財欣不動產管理顧問有限公司
統一編號:22857204
✍
經紀人:
(97)
年北市經證字001562號
💼
營業員:(98)登字第133601號
❦❦❦❦❦❦❦❦❦❦❦❦❦❦❦❦❦❦❦❦❦❦❦❦❦❦❦❦❦❦❦❦❦❦❦❦
生活e點通~
📣
財政部新青安成家
📣
全國地政電子謄本系統
📣
地籍圖便民服務
📣
房地合一專區
📣
台北捷運路線圖
📣
新北捷運路線圖
📣
桃園捷運路線圖
📣
台中捷運路線圖
汐止法拍透天-0
汐止法拍透天-1
汐止法拍透天-2
汐止法拍透天-3
汐止法拍透天-4
汐止法拍透天-5
汐止法拍透天-6
汐止法拍透天-7
汐止法拍透天-8
汐止法拍透天-9
物件留言
請注意,如果您詢問的內容與物件不相符合或是廣告,經過審核,系統將會直接刪除您的發問內容
相似物件
汐止
售2531萬
汐止區湖東街30號3層樓,法拍屋代標 專線0913-303663 +LINE
類型:法拍透天_金龍湖風景區
坪數:48.16坪
格局:3房
汐止
售2812萬
汐止區秀山路104巷11號3層樓,法拍屋代標 專線0913-303663 +LINE
類型:法拍透天_秀峰鋪透天厝
坪數:102.22坪
住宅分類
汐止法拍公寓
汐止法拍大樓
汐止法拍華廈
汐止法拍套房
汐止法拍透天
汐止法拍農舍
汐止法拍別墅
汐止法拍一樓
汐止法拍工業宅
汐止法拍店面
汐止法拍廠房
汐止法拍廠辦
汐止法拍商辦
汐止法拍辦公室
汐止法拍倉庫
免責聲明:House-Info房屋網平台系統為租用式開放房屋買賣網站建置平台,僅提供會員查詢-
新北市
,
汐止區
,
透天
-等房屋資訊參考,並不涉入任何諮詢、交易。 物件(服務)聯絡人公佈的資訊、文字、照片、圖形、產權、廣告內容、或其他資料若有不實或違法情事,或與客戶聯絡交易過程中若衍生民事或刑事等法律問題,皆與House-Info房屋網站無關,所有商標、文章、名稱等版權,皆歸屬原著作者所有!
新北法拍屋
|
新北市法拍屋
|
新北法拍屋公告
|
買新北法拍屋
|
新北市法拍屋
|
新北法拍屋買賣
|
新北法拍屋
|
新北法拍屋拍賣
資料處理中,請稍後...