新北汐止透天法拍
首頁
法拍屋物件查詢
法拍屋相關資訊
法拍屋社區大樓
法拍屋委託代標
透明房訊104法拍網
104法拍網
不動產新聞
google查詢
首頁
›
法拍屋物件查詢
›
新北法拍透天
›
汐止法拍透天
›
新北汐止透天法拍
新北汐止透天法拍|舊庄國小生活圈法拍屋透天2層三房
售
汐止東勢街法拍屋,研究苑社區,透天2層三房
列印
售1353萬4000元
售1084萬8000元
案號:
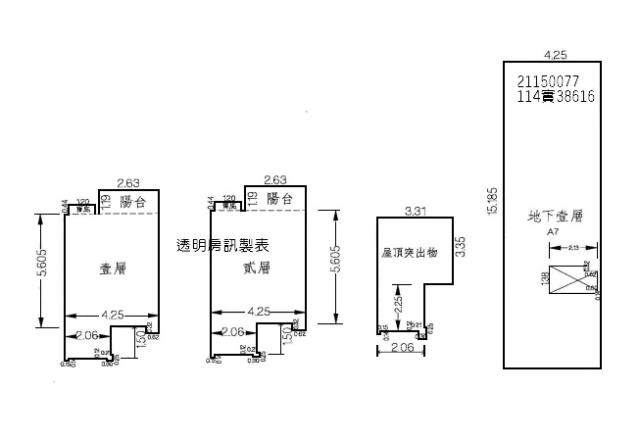
二拍【114實38616】
類型:
法拍透天_白匏湖景區
總登記坪數:
43.06坪
每坪單價:
25.19萬/坪
地址:
新北市汐止區東勢街201巷373號2層樓,法拍屋代標 專線0913-303663 +LINE
吳先生
(煩請告知聯絡人,您是在House-Info房屋網看到廣告,感恩幫忙)
0913-303-663
市話:
專業代標 吳先生 0913303663 02-22650614 03-3293994
公司名稱:
財欣不動產管理顧問有限公司/專業代標/營業員(97)經證字號001562
公司地址:
新北市土城區金城路二段396號11樓/桃園市莊敬路一段346號4樓/統編:22857204
我要留言
加LINE好友
物件介紹
詳細資料
銷售狀態
:
待標中
格局
:
3房,1廳,2衛,2陽台,1廚房
社區/大樓
:
研究苑
屋齡
:
30年
所在樓層
:
2層透天含未保存
電梯
:
未知
是否凶宅
:
不是
法拍屋
:
是
拍次
:
二拍
開標日期
:
115/06/24(三)
瀏覽人次
:
37人次
周邊環境
生活機能
:
林森公有市場,大尖山風景區,白匏湖景區山水綠生態公園,舊庄國小,誠正國中,樟樹國際實創高中,中央研究院,南港展覽館,近白雲山莊,北后雲天宮,總戶數約504戶,國道三號南港交流道,捷運南港展覽館站,
坪數說明
建物登記總坪數
:
43.06
主建物
:
35.14
附屬建物
:
6.99
公共設施
:
0.93
增建
:
18.04
土地登記總坪數
:
22.22
特色描述
♛
一零四法拍網(創立40週年)業界最大/專業團隊/全省服務/值得託付~
♠
︎
專業代標『吳先生』全程為您服務
♠
︎
代標專線
☎
0913303663
點入
+
line
💥💥💥
刊登內容以公告機關為準請投標人注意
🔥🔥🔥
法院筆錄:●點交情形→詳如備註●
1‧2203建號、3097建號拍定後點交,其餘係拍賣不動產應有部分,拍定後不點交。
2‧民國114年3月13日現場查封時,2203建號、3097建號房屋有第三人TARMUNAN在場稱係受僱之外傭,房屋現由其及債務人母親居住。經入內檢視內部有夾層,頂樓、天井皆有漏水,每層牆壁皆有壁癌,且有剝落情形。依強制執行法第113條準用第69條之規定,拍賣物買受人就物之瑕疵無擔保請求權,不得於拍定後主張,請應買人留意。另據社區總幹事稱1316建號係作為社區公設之體育館使用、2361建號係作為社區辦公室使用、2084建號係作為游泳池使用。惟現在實際情形如何,仍請應買人自行查明注意。
3‧3097建號係未登記建物,為頂樓屋突增建及1、2樓之夾層,依新北市政府違章建築拆除大隊114年8月6日新北拆認二字第1143268250號函示,該建物於列管系統內尚無違章建築認定紀錄,惟違章建築皆應列入分類分期處理,倘案經查認影響公共安全或經發現屬新建造之違章建築,或被列入專案處理者,將限期拆除。拆除風險請應買人自行注意,本件拍賣係以建物現況拍賣,當事人及拍定人均不得以面積不符,請求增減價金,拍定後無法以權利移轉證書辦理建物登記。
4‧投標人應自行查明債務人有無積欠管理費,並注意拍定後民法第826條之1第3項規定之適用問題。
《清償票款》
[他項權利: 拍後塗銷]
[謄本]:總坪數43.06坪[主建坪35.14坪,附屬坪6.99坪,公設坪0.93坪(建號:1316,1317,2361,2084)],另增建坪18.04坪[RC造/住商用]
⚖
️
拍賣機關公告
📣
司法院法拍屋公告
📣
國有財產署標售不動產資訊
📣
台灣金服含未辦繼承法拍物件
📣
法拍屋拍定價公告
📣
法務部行政執行署法拍物件
📣
產權清楚☆
強制執行法
【77
條
”
81
條
】#瑕疵不擔保#【69條】
🔎
法拍一點不燒腦~~
眉角全都在這邊~~
懶人包裡報您知~~
📣📣
104
法拍網/
透明房訊/
法拍屋,
土地全省最新拍賣資訊
📣
台北法拍屋快搜
📣
新北法拍屋快搜
📣
桃園法拍屋快搜
📣
台中法拍屋快搜
♠
北區熱門法拍屋
♠
北區法拍屋精選
♠
樂屋網
⏳
法拍屋代標流程
~~
1.
銀行代墊尾款
:(
最高可貸八成
)
2.
現場合理價格評估
3.
得標協助辦理過戶
4.
點交全程不用陪同
5.
和諧交付等您入住
6.
未得標不收取費用
☛
法拍代標找專業
~
☛
投標必中下決心
~
☛
過了這村沒那店
~
☛
別讓資金睡著了
❤
誠摯讓您感受最優質的代標全程服務
自備2成輕鬆成家~特約銀行核撥快速~只有買方安心選購~彈性出價理財首選~
❦
免費諮詢可
+line
❦
望您來電問透透
❦
消除疑慮再委託
❦
收費契約最透明
❦❦❦❦❦❦❦❦❦❦❦❦❦❦❦❦❦❦❦❦❦❦❦❦❦❦❦❦❦
雙北助理專線
☎
02-22650614
桃園助理專線
☎
03-3293994
全省
☎
0913303663
🏘
️
經紀業:財欣不動產管理顧問有限公司
統一編號:22857204
✍
經紀人:
(97)
年北市經證字001562號
💼
營業員:(98)登字第133601號
❦❦❦❦❦❦❦❦❦❦❦❦❦❦❦❦❦❦❦❦❦❦❦❦❦❦❦❦❦❦❦❦❦❦❦❦
生活e點通~
📣
財政部新青安成家
📣
全國地政電子謄本系統
📣
地籍圖便民服務
📣
房地合一專區
📣
台北捷運路線圖
📣
新北捷運路線圖
📣
桃園捷運路線圖
📣
台中捷運路線圖
新北透天法拍-0
新北透天法拍-1
新北透天法拍-2
新北透天法拍-3
新北透天法拍-4
物件留言
請注意,如果您詢問的內容與物件不相符合或是廣告,經過審核,系統將會直接刪除您的發問內容
相似物件
汐止
售1298萬
汐止區湖東街30號3層樓,法拍屋代標 專線0913-303663 +LINE
類型:法拍透天_金龍湖風景區
坪數:48.16坪
格局:3房
汐止
售1320萬
汐止區汐萬路二段66巷68弄15號3層樓,法拍屋代標 專線0913-303663 +LINE
類型:法拍透天_民視攝影棚
坪數:40.02坪
格局:3房
汐止
售2812萬
汐止區秀山路104巷11號3層樓,法拍屋代標 專線0913-303663 +LINE
類型:法拍透天_秀峰鋪透天厝
坪數:102.22坪
住宅分類
汐止法拍公寓
汐止法拍大樓
汐止法拍華廈
汐止法拍套房
汐止法拍透天
汐止法拍農舍
汐止法拍別墅
汐止法拍一樓
汐止法拍工業宅
汐止法拍店面
汐止法拍廠房
汐止法拍廠辦
汐止法拍商辦
汐止法拍辦公室
汐止法拍倉庫
免責聲明:House-Info房屋網平台系統為租用式開放房屋買賣網站建置平台,僅提供會員查詢-
新北市
,
汐止區
,
透天
-等房屋資訊參考,並不涉入任何諮詢、交易。 物件(服務)聯絡人公佈的資訊、文字、照片、圖形、產權、廣告內容、或其他資料若有不實或違法情事,或與客戶聯絡交易過程中若衍生民事或刑事等法律問題,皆與House-Info房屋網站無關,所有商標、文章、名稱等版權,皆歸屬原著作者所有!
新北法拍屋
|
新北市法拍屋
|
新北法拍屋公告
|
買新北法拍屋
|
新北市法拍屋
|
新北法拍屋買賣
|
新北法拍屋
|
新北法拍屋拍賣
資料處理中,請稍後...